Как строится работа над проектом?
ВернутьсяТехническое задание
На данном этапе мы обсуждаем все ваши пожелания и отмечаем те пункты, которые необходимо предусмотреть. Уточняем, есть ли домашние животные, потребуется ли шумо- или тепло- изоляция, какое напольное покрытие для вас в приоритете и т.д. Очень важно тут обсудить вопрос бюджета (то есть, сколько денег вы готовы потратить на реализацию проекта «под ключ»). Мы всегда ориентируемся на реальные суммы и разрабатываем реализуемые проекты, которые наши клиенты в дальнейшем смогут воплотить в жизнь.
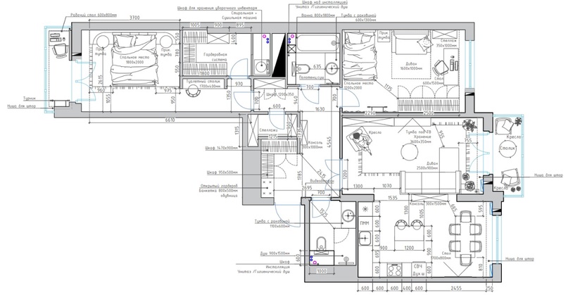
Разработка планировочного решения
Единоразово нашим клиентам мы выдаем три варианта планировок. Далее, мы начинаем их обсуждать, вносить изменения и корректировки. Это нормально, что какие-то моменты мы берем с первого варианта, что-то берем со второго, что-то с третьего. Нам важно на каждом этапе «прожить» несколько дней в квартире или доме, представить, как просыпаются наши клиенты, как идут в душ, готовят и т.д. Этот этап — залог того, что в квартире будет удобно жить конкретному человеку или семье.

Далее — самое красивое — 3D-визуализации
Прорабатываем визуальную концепцию, цвета, формы. Если какие-то элементы не нравятся, то мы всегда просим клиентов честно говорит, что именно смущает. Мы всегда нацелены на хороший результат, поэтому нам важно строить диалог. В таком случае, результат будет радовать как нас, так и наших клиентов.

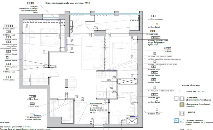
Согласование планов электрики
Мы предоставляем нашим клиентам возможность ознакомиться с расположение всех выключателей и розеток для того, чтобы принять решение, удобно ли будет такое расположение конкретно для них. Мы разрабатываем планы на основании нашего опыта и так, как удобно, по нашим наблюдениям, подавляющему большинству людей. Но, опять-таки, все мы разные и это нормально, что кому-то требуются USB розетки, а кому-то они и вовсе не нужны.

Следующий этап — разработка технической документации
Грамотные чертежи — залог того, что проект воплотится в жизнь. Мы предоставляем всю необходимую информацию для реализации проекта.

Разработка спецификаций
Все, что наш клиент видит на визуализациях — реальные позиции мебели и материалов. Мы прописываем абсолютно все артикулы для мебели, сантехнического оборудования, осветительных приборов, отделочных материалов, декоративных элементов, тканей для штор и обивочных материалов. Для мебели индивидуального изготовления мы прописываем материал из которого она должна быть изготовлена.

Реализация
Даже после сдачи проекта, мы остаемся на связи с нашими клиентами. И готовы помочь в решении сложных ситуаций на стройке. Ниже немного фото с наших строек

