Дизайн интерьера для квартиры в ЖК Сердце города

Квартира

Площадь 79,74 
Комнат: 2
г. Воронеж, ЖК «Сердце города»

Неброская гармония этого интерьера отвечает основному пожеланию заказчиков – максимально светлое пространство, выдержанное, преимущественно в холодных тонах. Квартира предназначена для постоянного проживания семьи из трех человек. Структура квартиры, которая была предоставлена застройщиком, в целом устраивала заказчиков, поэтому перепланировка была выполнена минимальная. Ориентиром при разработке проекта служила скандинавская эстетика. Получилось пространство, которое смотрится свободно и гармонично. Это обусловлено единством и целостностью цветовой гаммы: серо-бежевый в различных оттенках сочетается с белым и мятным цветом. Дополнительную легкость придает светлый пол - по пожеланию заказчиков мы его выполнили из керамогранита, имитирующего мрамор.

1
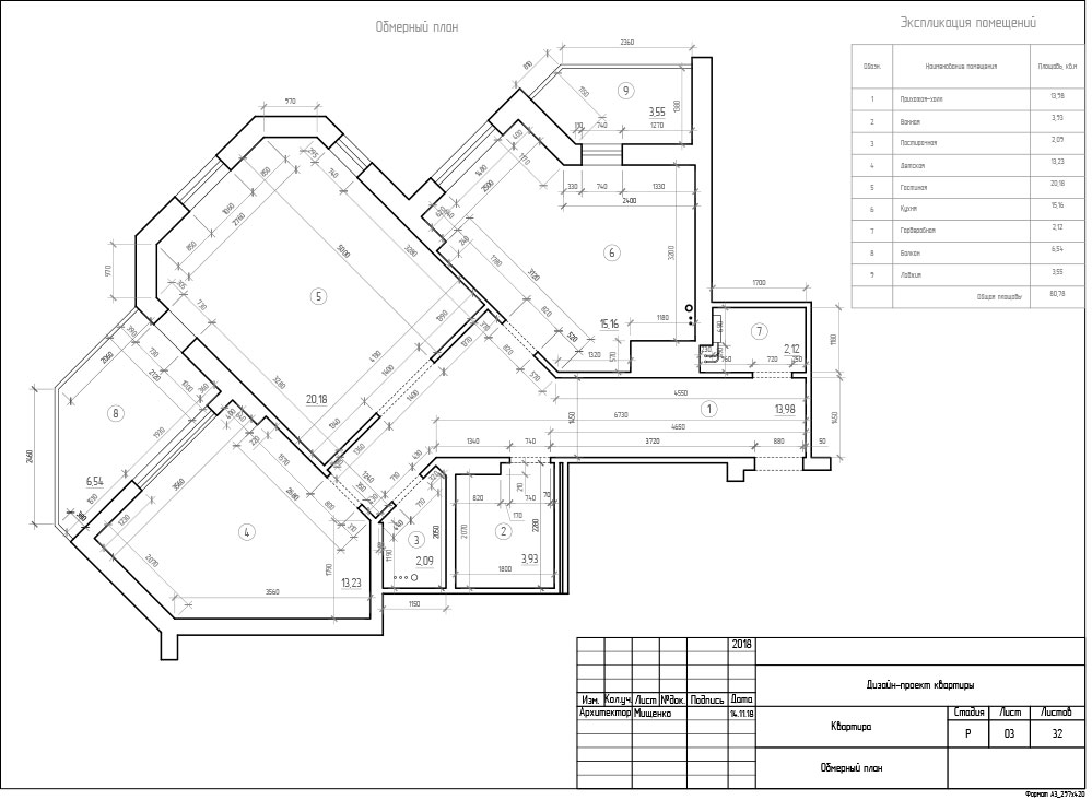
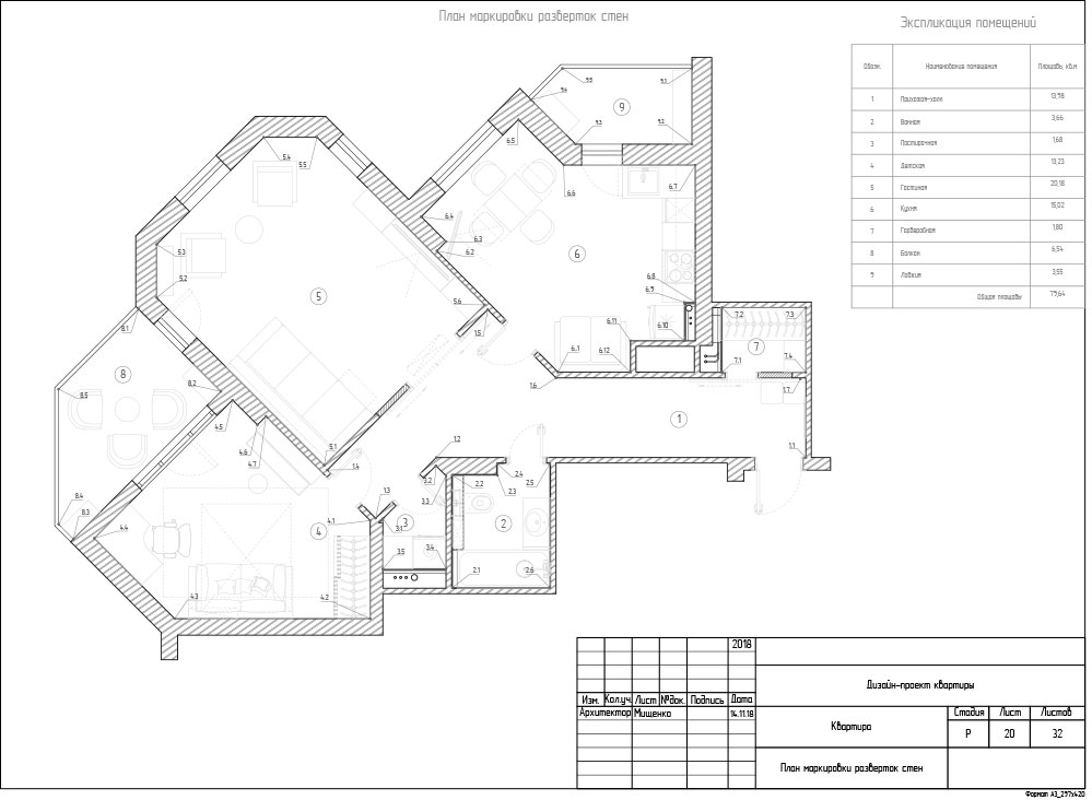
Планировочное решение arrow_up

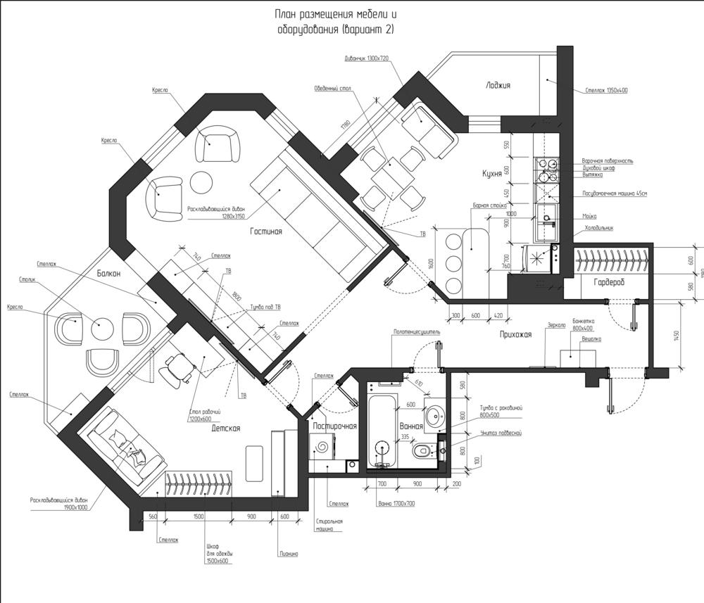
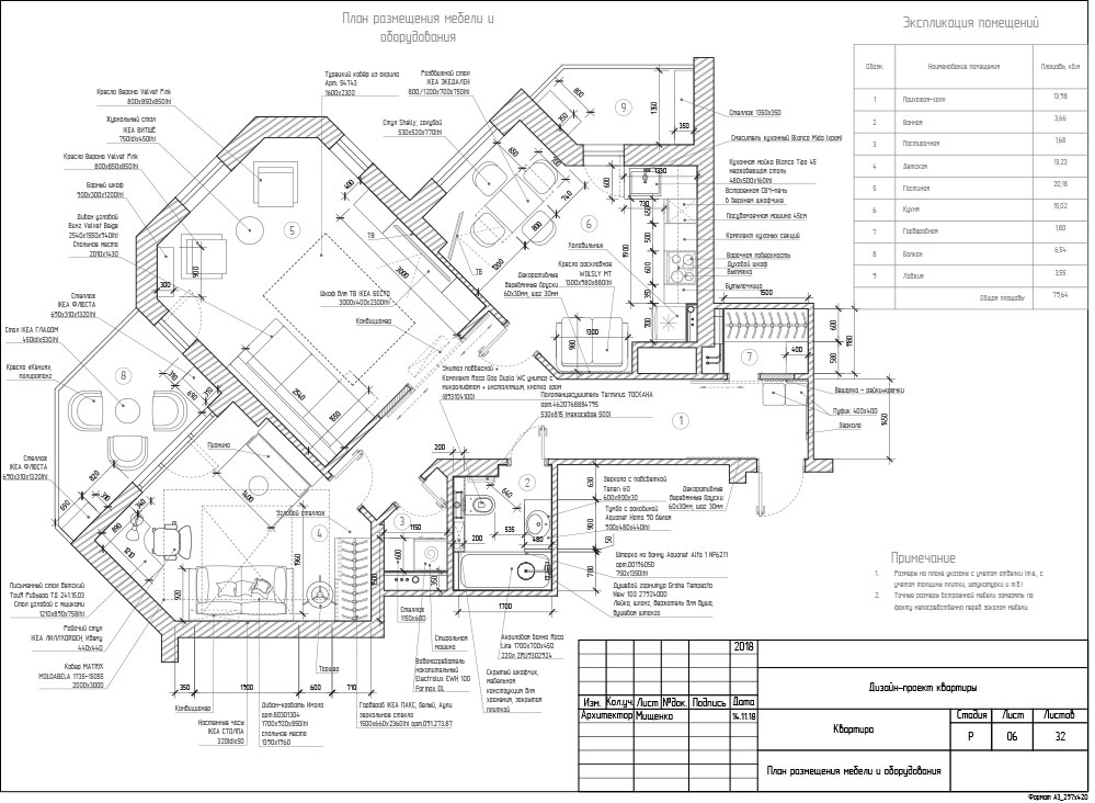
Разработка любого интерьера начинается с планировочного решения. Мы прислушиваемся ко всем пожеланиям заказчиков и учитываем все потребности, для того чтобы создать тот самый интерьер, в котором будет комфортно жить. Грамотно спланированное пространство является основой для дизайна. Перед этим этапом мы просим вас заполнить анкету и уточняем все мелкие и, казалось бы, незначительные детали, которые позволяют собрать нам один большой пазл – планировку дома, в котором будет удобно каждому члену семьи и в который вам захочется возвращаться вновь и вновь. Для того, чтобы у вас была возможность выбора, мы предоставляем сразу три варианта планировочных решений.

Зачастую, планировочное решение заказывают еще на этапе покупки недвижимости, чтобы уже заранее оценить насколько помещение будет соответствовать требованиям конкретной семьи.  

2
Визуализация arrow_up

Визуализация это один из самых волнительных этапов в работе не только для нас, но и для наших заказчиков. Мы подготавливаем максимально реалистичную 3D визуализацию и именно на этом этапе вы можете посмотреть ваш будущий интерьер. Представить, как вы сидите на диване в гостиной или собираетесь с друзьями на кухне. На визуализации отражены реальные позиции мебели и материалов, и вы можете посмотреть и понять, какие элементы вам нравятся, а что хотелось бы поправить или изменить. У вас есть уникальная возможность внести изменения именно на этапе проекта, когда на это не требуется больших затрат. На каждое помещение предоставляется три итерации правок. 3D визуализация позволяет избежать неприятных ситуаций, когда купленное и, казалось бы, красивое кресло совершенно не вписывается в интерьер.  

3
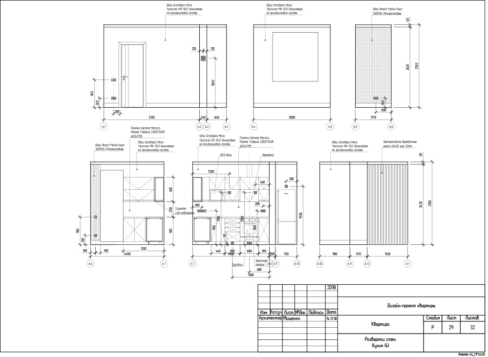
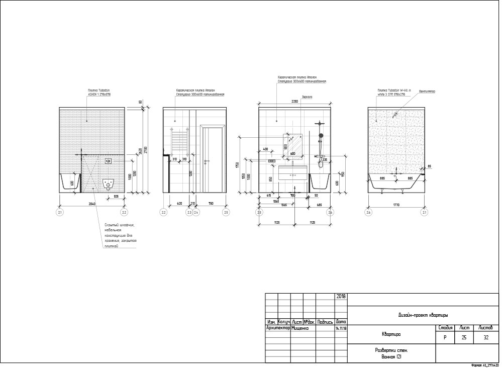
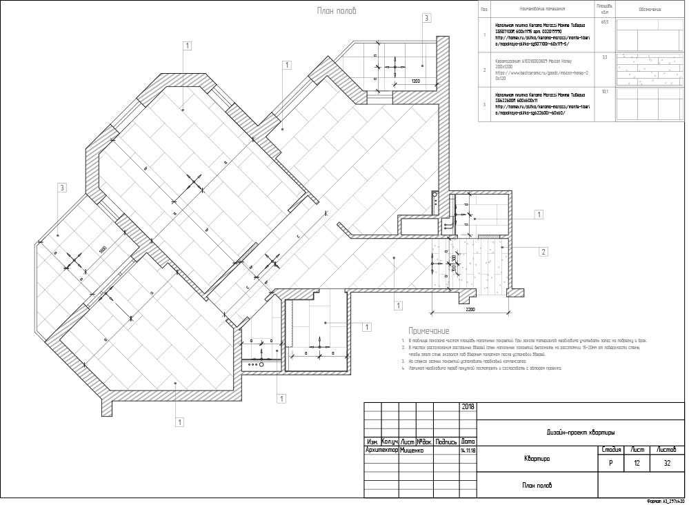
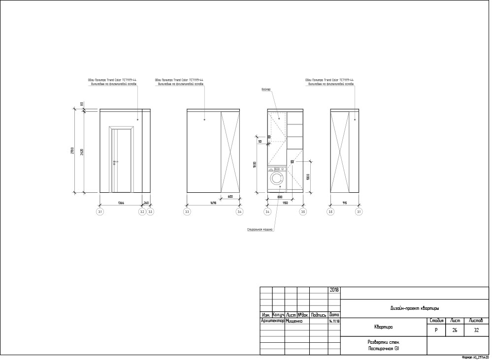
Чертежная документация arrow_up

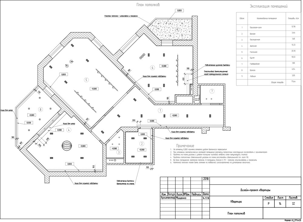
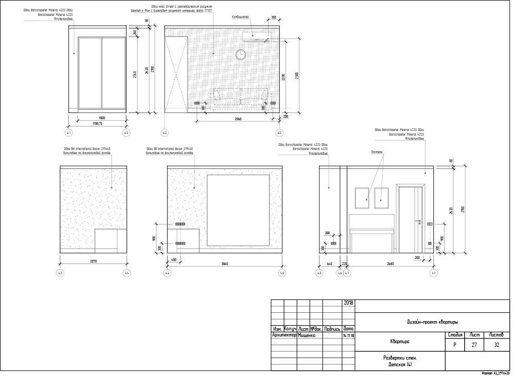
Итак, визуализации всех помещений полностью согласованы, материалы подобраны и теперь дизайнер приступает к разработке рабочей документации. Рабочие чертежи необходимы для того, чтобы строительная бригада воплотила ваш интерьер в жизнь в точности как на картинке. На этом этапе мы досконально прорабатываем все технические моменты, указываем расположение и количество розеток, вычерчиваем сложные узлы потолочных конструкций, собираем финальные ведомости по материалам, подсчитываем необходимое количество плитки и многое другое. Состав рабочей документации зависит от выбранного пакета услуг.

4
Смета arrow_up

Расчет сметы на строительные работы не входит в дизайн-проект. Дизайнер не должен быть компетентен в просчете строительной сметы и не сможет учесть все нюансы. Смету считает руководитель строительной бригады. У нас есть строительные бригады, которые могут просчитать стоимость ремонта под ключ. Но в нашей дизайн-студии вы можете заказать расчет стоимости для чистовых материалов и мебели.

5
Черновые фотографии объекта arrow_up

На этих фотографиях вы можете увидеть, как выглядел объект, до начала разработки дизайн-проекта. Пока, выглядит не очень уютно, верно? Интересно, что стало? Тогда смотрите следующий блок.

6
Визуализация-Реализация arrow_up

Пожалуй, для этого блока не требуется много слов. Смотрите и сравнивайте, как выглядело помещение ДО и что у нас получилось ПОСЛЕ. Заказав у нас дизайн, вы получаете не что-то абстрактное, а именно проект, который можно будет воплотить в реальность, что мы уже и сделали вместе с заказчиками, которые доверились нам.

Визуализация
Реализация
7
Реализация arrow_up

Вы посмотрели сравнение 3D визуализации и реальных фотографий? Предлагаем вам посмотреть еще больше фотографий с реализованных объектов. И мы думаем, что вам было бы интересно узнать чуть больше о процессе реализации. Для некоторых людей это наиболее сложный этап, т.к. красивый проект уже на руках, но до красивого результата еще несколько месяцев работы. Мы можем максимально облегчить вам процесс ремонта. Вы можете заказать авторский надзор и комплектацию – в таком случае мы не только будем контролировать все работы, проходящие на стройке, но и закупим для вас все, что необходимо для комфортного проживания в доме. Вам лишь остается расслабиться и наслаждаться нашей работой.

8
Видео проекта arrow_up

Неброская гармония этого интерьера отвечает основному пожеланию заказчиков – максимально светлое пространство, выдержанное, преимущественно в холодных тонах. Квартира предназначена для постоянного проживания семьи из трех человек. Структура квартиры, которая была предоставлена застройщиком, в целом устраивала заказчиков, поэтому перепланировка была выполнена минимальная. Ориентиром при разработке проекта служила скандинавская эстетика. Получилось пространство, которое смотрится свободно и гармонично. Это обусловлено единством и целостностью цветовой гаммы: серо-бежевый в различных оттенках сочетается с белым и мятным цветом. Дополнительную легкость придает светлый пол - по пожеланию заказчиков мы его выполнили из керамогранита, имитирующего мрамор.

Если вы не знаете, что хотите

Практическая магия

Перезвоните мне
Баннер
А если дешевле?
Сделай заказ прямо сейчас
и получи скидку
2000
Хочу сейчас